Сдается в аренду коммерческая недвижимость, Россия, Москва, Лесная улица, 43
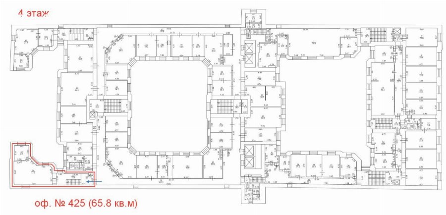
65.8 м² этаж 4 этажность 6 Менделеевская · 5 мин пешком
Россия, Москва, Лесная улица, 43
Описание
Предлагается в аренду офисное помещение . . Есть собственный дворик и парковка. Бизнес-центр расположен в Тверском районе Центрального административного округа Москвы. Напротив фуд-молл Депо Москва. Выполнен евроремонт, с/у на этаже. Предоставляется юридический адрес. Широкий выбор Интернет (провайдеров Комфортел, WestCall, НорсНэт, Билайн, МегаФон).
329 000 ₽/мес
5 000 ₽/м² в месяц
Параметры объекта
Подробные характеристики по данным карточки
Общая площадь
65.8 м2
Вход
Пропускная система
Тип здания
Нежилое
Тип здания
Административное
Высота потолков
3 м.
Класс здания
B
Состояние
Офисная отделка
Кондиционирование
Центральное
Тип договора
Прямая аренда
Электрическая мощность
5 кВТ
Пожаротушение
Сигнализация
Этаж
4
Этажей
6
Банкомат
Да
Отделение банка
Да
Салон красоты
Да
Кафе
Да
Столовая
Да
Центральная рецепция
Да
Конференц-зал
Да
Фитнес-центр
Да
Гостиница
Да
Медицинский центр
Да
Минимаркет
Да
Нотариальная контора
Да
Парк
Да
Аптека
Да
Ресторан
Да
Торговая зона
Да
Фотосалон
Да
Супермаркет
Да
Отопление
Центральное
Планировка
смешанная
Метро
Менделеевская
Время до метро
5 мин.
Путь до метро
Пешком
Минимальный срок аренды
11
Тип парковки
Наземная
Период оплаты
месяц
Цена
329000 руб.
Залог
100 %
Залог тип
%
Предоплата
1 месяц
Стоимость парковки
15000 р.
Срок аренды
длительный срок
Форма налогообложения
НДС включен
Тип сделки
Аренда
Тип недвижимости
Коммерческая
Вентиляция
Приточная
Расположение
Россия, Москва, Лесная улица, 43































