Продается дом, Россия, Московская область, городской округ Красногорск, посёлок городского типа Путилково, Путилковское шоссе, 16
Россия, Московская область, городской округ Красногорск, посёлок городского типа Путилково, Путилковское шоссе, 16
Описание
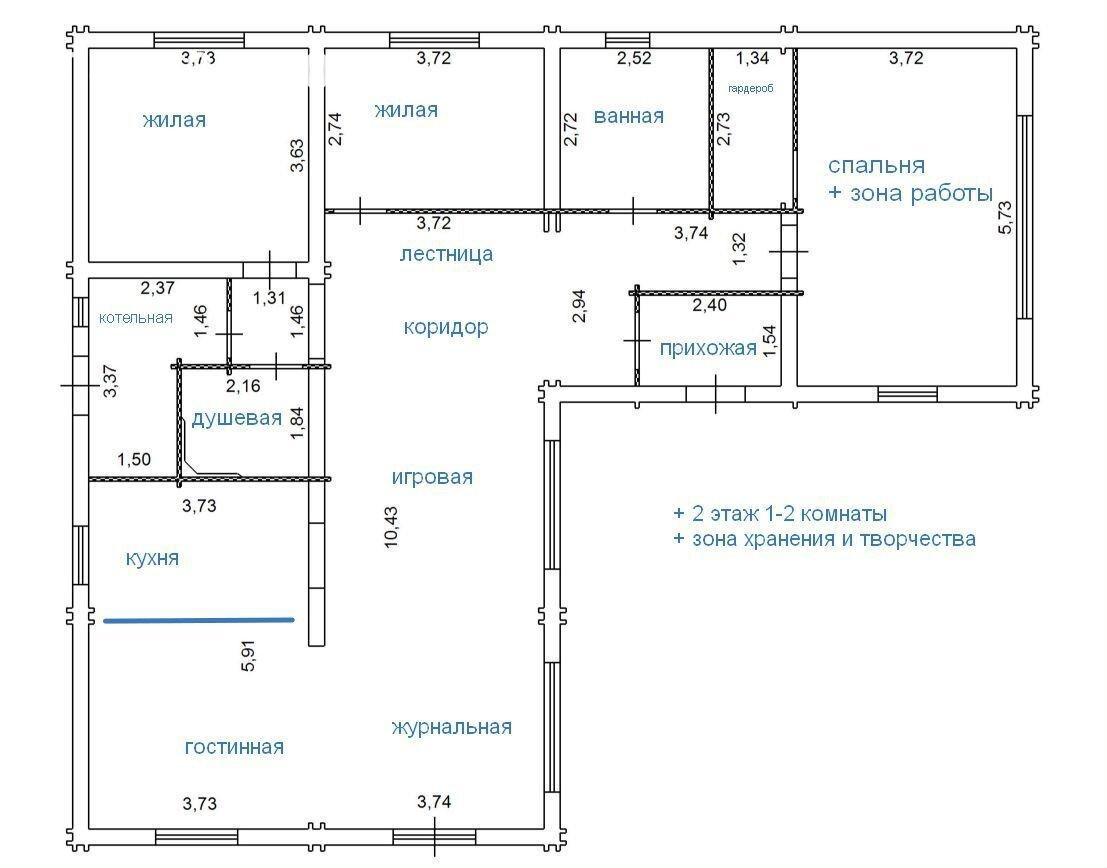
Предлагаем вашему вниманию просторный, красивый коттедж, расположенный в городе Путилково, всего в 500 метрах от МКАД. Удобное местоположение обеспечивает быстрый доступ к основным трассам, включая Ленинградское и Волоколамское шоссе, а также регулярное сообщение с четырьмя станциями метро. Это идеальное место для тех, кто ценит спокойствие загородной жизни с близостью к столице. Площадь дома составляет 400 м . Дизайнерский ремонт выполнен с особым вкусом, а дом полностью укомплектован всем необходимым для комфортного проживания: мебелью, техникой и интернетом на выделенной линии. Участок площадью 15 соток обрамлен ухоженным ландшафтным дизайном с плодовыми деревьями и хвойными растениями, что делает его идеальным для отдыха на свежем воздухе. На территории есть четыре парковочных места и отдельно стоящая двухэтажная баня с эксклюзивным дизайном ручной работы, а также сауна в доме. В шаговой доступности находятся супермаркеты, маленькие магазины и аквапарк "Термоленд", что делает жизнь в этом районе еще более комфортной. Это замечательная возможность сочетать загородное спокойствие с городскими удобствами!
Параметры объекта
Подробные характеристики по данным карточки
Расположение
Россия, Московская область, городской округ Красногорск, посёлок городского типа Путилково, Путилковское шоссе, 16













































































































