Продается коммерческая недвижимость, Россия, Москва, проспект Мира, 54

ПСН
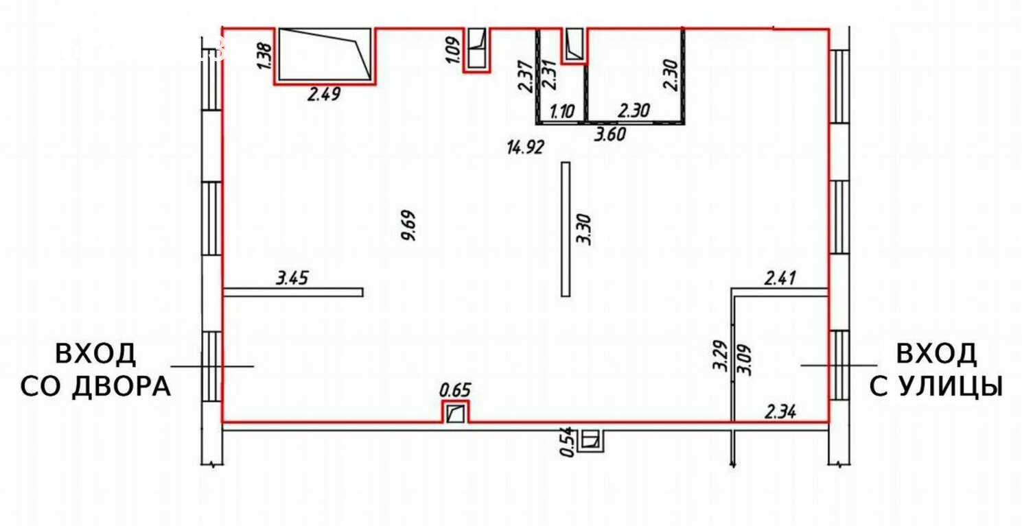
155.0 м² этаж 1 этажность 8 Проспект Мира · 4 мин пешком

Россия, Москва, проспект Мира, 54

Описание

Предлагается к продаже коммерческая недвижимость, расположенная по адресу: город Москва, Центральный административный округ, Проспект Мира. Помещение находится в непосредственной близости от станции метро «Проспект Мира», что обеспечивает высокую транспортную доступность. Время пути от метро до объекта составляет две минуты пешком.Расположение объекта характеризуется отличной пешеходной и транспортной доступностью, что делает его привлекательным для широкого круга потенциальных арендаторов. Помещение обладает значительным рекламным потенциалом, включая возможность размещения наружной рекламы на фасаде здания.

92 400 000 ₽

Параметры объекта

Подробные характеристики по данным карточки

Общая площадь
155 м2
Тип здания
Жилое
Тип здания
Жилой дом
Высота потолков
4.5 м.
Кондиционирование
Центральное
Тип договора
Продажа объекта
Электрическая мощность
10 кВТ
Пожаротушение
Сигнализация
Этаж
1
Этажей
8
Отопление
Центральное
Вход
Отдельный с улицы
Метро
Проспект Мира
Время до метро
4 мин.
Путь до метро
Пешком
Цена
92400000 руб.
Форма налогообложения
УСН
Тип сделки
Продажа
Возможное назначение
Бизнес, Офис, Торговля, Склад, Продукты, Ресторан, Детские товары, Детский магазин, Клиентский офис, Косметология, Свободное назначение, Частная практика
Тип недвижимости
Коммерческая
Вентиляция
Приточная

Расположение

Россия, Москва, проспект Мира, 54