Продается коммерческая недвижимость, Россия, Московская область, городской округ Чехов, рабочий посёлок Столбовая, Большая улица, 26
Россия, Московская область, городской округ Чехов, рабочий посёлок Столбовая, Большая улица, 26
Описание
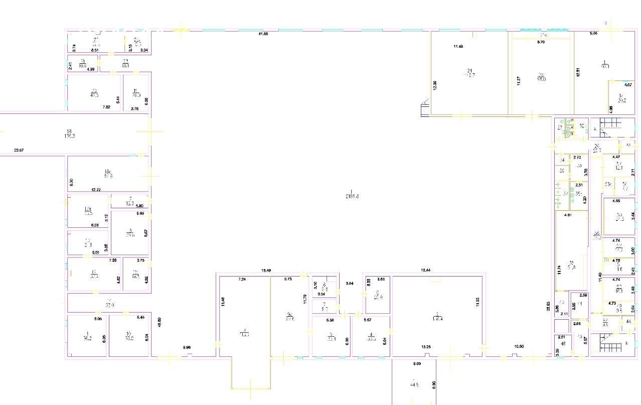
Продам: Производство-готовый бизнес/ Склад/Площади свободного назначения - общей площадью 27000 м ( г Чехов, рп Столбовая ул Большая 26). Земля 61 000 кв. м. в аренде 49 лет. Дом: тип строения - производственное, материал стен - железобетонный, этаж - 1, этажность - 1. Мощность 3440кВа, вода, канализация, отопление, газ (собственная котельная). Особенности: парковка на улице, охрана, пропускной режим, видеонаблюдение, логистические услуги, доступ на объект 7*24. Дополнительно: а/погрузчик, кран-балка, металообр., оборудование, сухой, тельфер, теплый, утепленный, ответственное хранение, наличие офиса на складе. Особенности строения: складск. комплекс, тер. предприятия., открытая площадка. Состояние: чистовая. Стоит дорогостоящее оборудование готовый бизнес под окраску, оборудование по стеклу, алюминиевое производство и тд. - готовый бизнес -участок А2 - Участок покраски 2200 кв. м. - (А-2 цо+гальваника - 3 кран-балки, 2 тельфера, туалет, раздевалка). - участок А3- производство, склад 2 376 кв. м. -(2 кран-балки по 5т. ) - участок Б1- 4 536 кв. м. производство, склад, 2 мостовых крана 10 тн, душевая, туалет, раздевалка, столовая, общежитие. - Б2- Фонарь-производство - склад- 2865 кв. М. - гпм-нет, отапливаемое, 2-ое секционных ворот 6 м, высота потлков 9м. - готовый бизнес ! Б3+Б4 7200 кв. м. - готовый бизнес, стоит оборудование по стеклу рассматриваем партнёрские отношения. (1 кран-балка 3тн, склад, 2-ой этаж для итр, 1 кран-балка-5тн, душевая, туалет, раздевалка, 2-ой этаж для итр) склад 360 метров . склад 168 м. оборудование продается отдельно при заинтересованности!21
Параметры объекта
Подробные характеристики по данным карточки
Расположение
Россия, Московская область, городской округ Чехов, рабочий посёлок Столбовая, Большая улица, 26


























































